Non-payment insurance
We guarantee the collection of rental payments
Almería Capital
ALQUILER 15.000 € MES
Superficie 4.111 m2
El propietario propone un contrato a largo plazo mínimo 20 años, permitiendo al arrendatario a
adecuar el edificio para el uso que se quiera dar al edificio con previa conformidad del arrendador.
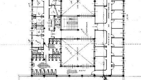
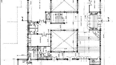
Descripción: El edificio se distribuye en Planta baja, Planta semi sótano, y cuatro plantas.
Planta tipo tiene una superficie de 577.8 m2. Tiene acceso a cubierta exterior planta primera de
332 m2 cuadrados, que se le podría dar uso de terraza y acceso cubierta de 577 m2, ocupando
casetón de acceso 70 y 507 restantes cubierta descubierta para posibles usos comunes e
instalaciones.
Calificación urbanística, es uso dotacional y servicios públicos. Con lo que es compatible uso de
residencia estudiantes, residencia tercera edad u otros compatibles como servicios públicos.
Quedan excluidos usos vivienda y hotelero explícitamente.
Cualquier actividad que se realice en el edificio necesitará una licencia de actividad por parte del
ayuntamiento.
Interesado en más información concretar una llamada o una visita al edificio para explicar en más
detalle el tipo contrato que se propones y garantías.
Property type
Condition
Energy
Emissions
We guarantee the collection of rental payments
Choose the Fiber that best suits you.
Get electricity and gas online, no contract required
Please let us know about it so we can correct it.