Residential in EL PUERTO , Puerto de Garrucha
Puerto de Garrucha, Garrucha
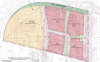
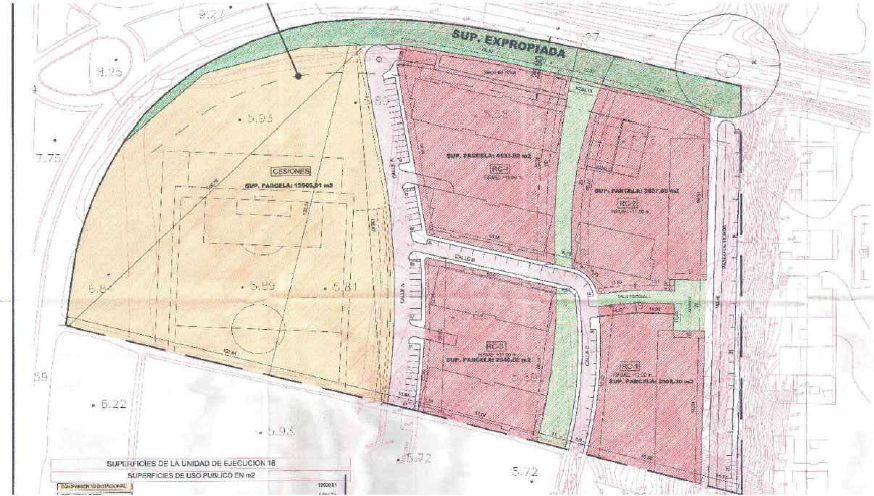
NO COBRAMOS COMISIÓN DE INTERMEDIACIÓN AL COMPRADOR Excelente oportunidad de adquirir en propiedad este suelo urbano residencial en propiedad ubicado en Garrucha (Almería). - Edificabilidad: 19.728,4 m2c. - Altura máxima: III sobre rasante, I bajo rasante. - Referencia catastral: 4566604XG0146N0000DS La posesión de un suelo otorga al propietario facultades, deberes y cargas basadas en las leyes urbanísticas. El cumplimiento de las mismas previene de sanciones, multas y facilita el camino para ser partícipe en un nuevo plan de urbanización. En todo caso, siempre es recomendable consultar con la Administración las ordenaciones territoriales. En una zona inmejorable muy bien comunicada por carretera, lo que facilita los desplazamientos a distintos puntos de la región o del país. Situado en una zona residencial tranquila, aprovecha de esta propiedad en una ubicación estratégica. Dispone de todos los servicios públicos o privados necesarios como pequeño comercio de proximidad, supermercados y gran oferta gastronómica. Garrucha, en la costa almeriense, combina a la perfección el encanto de un puerto pesquero tradicional con la belleza de sus excelentes playas, de arena dorada y aguas cristalinas. Conocida por su gastronomía basada en productos del mar, donde la reina indiscutible es su famosa gamba roja, desde su imponente Castillo de San Ramón hasta las bulliciosas subastas de pescado en la lonja, pasando por su relajante paseo marítimo, Garrucha sigue conservando, pese al turismo, el encanto de un pequeño pueblo marinero. Hipoges es una plataforma inmobiliaria donde podrás acceder a miles de activos inmobiliarios de diferentes tipos como viviendas, locales comerciales, terrenos, nueva obra, tanto a nivel particular como para inversores. Hipoges cuenta con una amplia cartera de activos inmuebles tanto en España como en Portugal y Grecia. ¿Necesitas financiación? Te ofrecemos la posibilidad de financiaciones de hasta el 100% para la compra de este inmueble. Entra en Finanwin.com, haz tu simulación y obtén la mejor oferta para tu Hipoteca de la manera más ágil y sencilla.
- 4133 m²