Contrata luz y gas online, sin permanencia
- 1400 sqm
- 1400 sqm terrain
Residential for sale in Carretera Canadá Canadá, 7, Moratalla
Moratalla
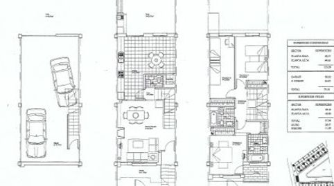
Situado en Cañada de la Cruz, término de Moratalla, Región de Murcia.
Solar adosado a los dúplex (segunda fase).
Superficie total: 1.409,94 m2 (748,95 + 660,90).
Precio a convenir.
More filters
Property type
Residential
Interest type
Estimated monthly payment
1.049 €
Service offered by
Fotocasa does not act as a financial intermediary. The information provided is for guidance only, based on publicly available market information. The credit institution will contact the potential borrower to negotiate, facilitate, and agree upon the applicable financial conditions.
Mortgage breakdown
Your monthly payment
1.049 € *
For 30 years (360 payments)
Property price:
300.000 €
Taxes and purchase expenses:
25.449 €
Total property cost:
325.449 €
Savings contributed:
60.000 €
Mortgage amount:
265.449 €
Total interest:
112.135 €
Total cost with mortgage
437.584 €
Principal + interest + taxes and fees
Fotocasa does not act as a financial intermediary. The information provided is for guidance only, based on publicly available market information. The credit institution will contact the potential borrower to negotiate, facilitate, and agree upon the applicable financial conditions.
Elige la Fibra que mejor se adapte a ti.