Calculate your mortgage
Compare offers from different banks.
Madrid Capital
Este solar urbano permite desarrollar dos amplias viviendas unifamiliares adosadas, de tres plantas más sótano, con jardines privados, mucha luz natural y un alto nivel de confort en un entorno bien comunicado y consolidado. La combinación de elevada edificabilidad, buenas orientaciones, marco normativo claro y exigencias de sostenibilidad y eficiencia energética lo hace especialmente atractivo para promotores, inversores y familias que busquen una vivienda contemporánea de alto nivel en Madrid.
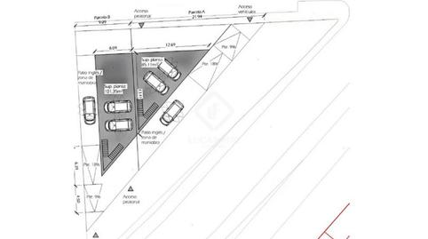
La parcela tiene 860 m² de superficie y una edificabilidad estimada de 695 m² sobre rasante, además de la posibilidad de ejecutar una planta bajo rasante destinada a garaje y usos auxiliares. Se ubica en la zona noreste de Madrid, en el barrio residencial de Canillas, próxima a ejes viarios principales, zonas comerciales y servicios, y con excelente acceso tanto al centro como al aeropuerto Adolfo Suárez Madrid‑Barajas.
Sus principales puntos diferenciales son su generoso volumen edificable, la opción de segregar en dos parcelas para construir dos viviendas unifamiliares adosadas y la doble orientación a dos calles. El solar, de forma triangular, puede dividirse en dos parcelas similares cada una con jardín privado y accesos independientes. La normativa favorece la creación de espacios verdes privados y el uso de soluciones sostenibles como cubiertas ajardinadas, pérgolas vegetales y marquesinas fotovoltaicas, mejorando el confort térmico y el comportamiento ambiental del conjunto.
Typology
Compare offers from different banks.
Choose the Fiber that best suits you.
Save 30% on a 5-star service.
Please let us know about it so we can correct it.