Contrata luz y gas online, sin permanencia

Sant Pere de Ribes
Bellmar – Vilanoveta Residencial es una promoción de obra nueva sobre plano compuesta por 20 exclusivas viviendas, pensada para quienes buscan espacio, confort y una vivienda con proyección de valor, en un entorno residencial tranquilo y bien conectado.
Un proyecto promovido por GLOBAL HOMES y comercializado por Aproperties, que apuesta por una arquitectura mediterránea contemporánea, calidades actuales y una clara orientación familiar.
Fase inicial de lanzamiento · Acceso Priority
En esta primera fase de comercialización se ofrece acceso preferente a una selección limitada de 6 viviendas, disponibles antes de la comercialización completa del proyecto.
Esta fase inicial está dirigida a los primeros compradores que desean acceder a Bellmar – Vilanoveta Residencial desde su inicio para beneficiarse de un precio incial de lanzamiento y para escoger la vivienda que más les encaja según necesidades.
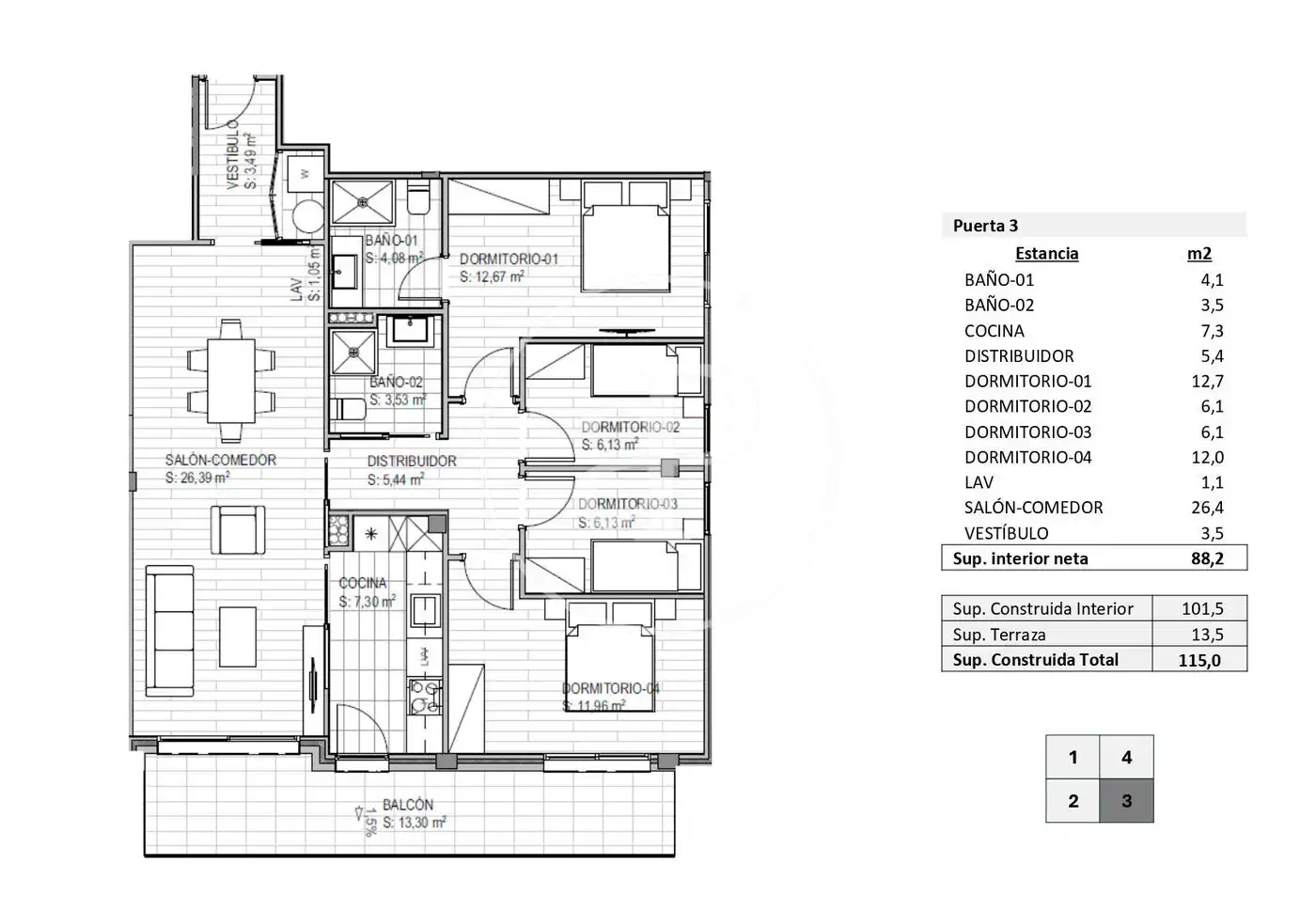
Viviendas amplias y bien distribuidas
La promoción cuenta con viviendas de 3 y 4 dormitorios, con distribuciones funcionales y estancias amplias que favorecen la luz natural y la comodidad en el día a día. Todas las viviendas son esquineras, lo que permite una ventilación cruzada y luz natural, sea cual sea su orientación.
Salones-comedor espaciosos con salida a balcones o terrazas, cocinas integradas y zonas de descanso bien diferenciadas hacen de estas viviendas una opción ideal para familias, tanto de la zona como de Barcelona, que buscan obra nueva a un precio más accesible sin renunciar a alta calidad.
Calidades y zonas comunes
Bellmar destaca por sus calidades modernas y eficientes, como carpintería de aluminio con rotura de puente térmico, persianas motorizadas, climatización por aerotermia y cocinas equipadas con electrodomésticos integrados.
Como elemento diferencial, la promoción dispone de una zona comunitaria en la azotea con piscina y solárium, pensada para disfrutar del aire libre y momentos de descanso en un entorno tranquilo.
Ubicación y potencial de revalorización
Situada en Vilanoveta (Sant Pere de Ribes), la promoción se encuentra en una zona residencial en crecimiento, con alto potencial de revalorización, rodeada de zonas verdes y con fácil acceso a Sitges, Vilanova i la Geltrú y el mar.
Una ubicación ideal para vivir con tranquilidad sin renunciar a servicios, comunicaciones y cercanía a Barcelona.
Plaza de parquing no incluida en el precio.
15 Housing in this promotion
Belongs to
Sant Pere de Ribes
Interest type
Estimated monthly payment
1.353 €
Service offered by
Fotocasa does not act as a financial intermediary. The information provided is for guidance only, based on publicly available market information. The credit institution will contact the potential borrower to negotiate, facilitate, and agree upon the applicable financial conditions.
Mortgage breakdown
Your monthly payment
1.353 € *
For 30 years (360 payments)
Property price:
378.000 €
Taxes and purchase expenses:
39.999 €
Total property cost:
417.999 €
Savings contributed:
75.600 €
Mortgage amount:
342.399 €
Total interest:
144.641 €
Total cost with mortgage
562.640 €
Principal + interest + taxes and fees
Fotocasa does not act as a financial intermediary. The information provided is for guidance only, based on publicly available market information. The credit institution will contact the potential borrower to negotiate, facilitate, and agree upon the applicable financial conditions.
Contrata luz y gas online, sin permanencia

Elige la Fibra que mejor se adapte a ti.

Please let us know about it so we can correct it.