- 76 days ago
- Top+
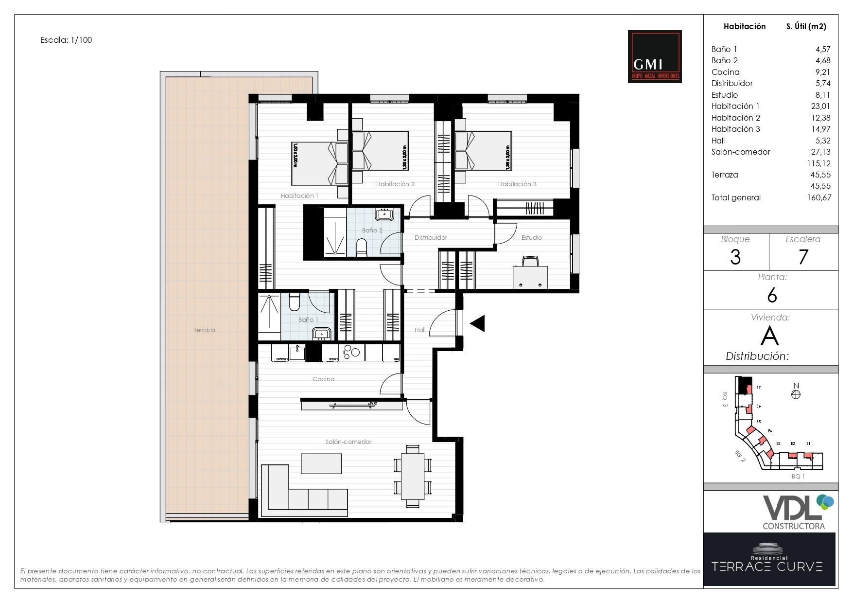
Flat with terrace in Avenida José Aguado, La Lastra
- 3 rooms·
- 2 bath·
- 129 m²·
- 6th floor·
- Elevator·
- Parking·
- Terrace·
- Heating·
- 76 days ago
- Top+
Nueva construcción de viviendas en La Lastra. Edificio Terrace Curve, situado entre la Avda. de José Aguado y Los Aluches, y centrado en la rotonda más grande de todo Leon. Viviendas de 1, 2, 3 y 4 dormitorios con amplias terrazas y cocinas amuebladas con electrodomésticos. Las viviendas también incluyen plaza de garaje, trastero, armarios empotrados, acabados de la marca Porcelanosa y la posibilidad de adaptar el proyecto de la cocina y los electrodomésticos según gustos ó necesidades. El sistema de producción de agua caliente y calefacción será por aerotermia central con contadores individuales, y el de distribución de la calefacción será por suelo radiante/refrescante. Sistema de ventilación mecánica controlada con recuperadores de calor y filtrado de aire. Se analiza con el cliente todas las posibles modificaciones sobre el proyecto a nivel de tabiquería, electricidad, fontanería, etc que quiera realizar. Comienzo principios del año 2026.