Duplex with terrace in de Castro del Río, Poble Nou
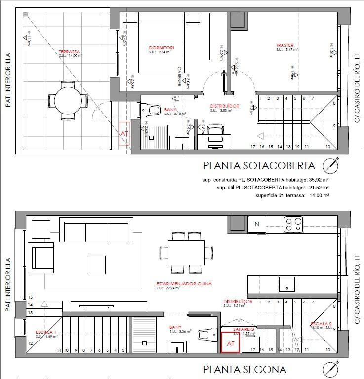
Te presentamos esta coqueta y funcional vivienda dúplex situada en una ubicación estratégica de Terrassa, en la calle Castro del Rio, una zona cómoda, bien comunicada y rodeada de todos los servicios necesarios para el día a día. La vivienda se encuentra en segunda planta y cuenta con 105 m² construidos (74 m² útiles), distribuidos de forma práctica y equilibrada para ofrecer un hogar acogedor y funcional. En la planta principal, al acceder a la vivienda, encontramos un agradable salón-comedor con cocina integrada, un espacio moderno y versátil, ideal tanto para el día a día como para compartir momentos en familia o con amigos. En esta planta también dispone de un baño completo, aportando comodidad adicional. A través de unas escaleras accedemos a la zona de descanso, donde se ubican dos habitaciones, una habitación doble de 9,5 m² y otra habitación individual de 8 m². Además, esta planta cuenta con un pequeño espacio polivalente, perfecto como despacho, zona de estudio o rincón de trabajo, así como un segundo baño completo, pensado para mayor confort. Como gran valor añadido, la vivienda dispone de una terraza de 14 m², un espacio exterior ideal para relajarse, disfrutar del aire libre, crear una zona chill-out o comedor exterior. Una propiedad ideal como primera vivienda, que destaca por su buena distribución, su espacio exterior y su ubicación consolidada. No dejes pasar esta oportunidad de vivir en una vivienda con encanto, bien ubicada y lista para entrar a vivir. Contacta con nosotros para más información o para concertar una visita. Se trata de una vivienda de obra nueva actualmente en construcción, con entrega prevista para el último trimestre de 2026.
- 2 rooms·
- 2 bath·
- 105 m²·
- 2nd floor
