Calculate your mortgage
Compare offers from different banks.
Vilanova i la Geltrú
En Naturalis, diseñamos hogares que no solo cuidan de ti, sino también del planeta. Ahora, tienes la oportunidad de vivir en la exclusiva urbanización Santa María de Vilanova, donde te ofrecemos una propuesta única. Con el precio indicado, recibirás el terreno de 447 m², el proyecto de construcción, la licencia de obras ya aprobada, y tu casa biopasiva completamente construida "llave en mano". Nos encargamos de todo, desde la primera piedra hasta la entrega de tu hogar listo para habitar.
Una de las grandes ventajas de este proyecto es que la licencia de obras ya está aprobada, lo que te permite comenzar la construcción de inmediato, sin tener que esperar largos plazos de espera. En pocos meses, estarás disfrutando de tu hogar sostenible y eficiente, hecho a medida para ti.
Este proyecto refleja nuestro firme compromiso con la construcción sostenible. La vivienda está diseñada siguiendo los principios de la arquitectura bioclimática, aprovechando los recursos naturales para mejorar la eficiencia energética y garantizar el máximo confort. Esto significa que vivirás en una casa que no solo respeta el medio ambiente, sino que también incorpora las últimas innovaciones tecnológicas.
¿Qué puedes esperar de tu nueva casa?
Aislamiento de alta calidad: Utilizamos la prueba Blower Door para asegurar que la vivienda sea completamente hermética, minimizando fugas de aire y mejorando la eficiencia energética.
Materiales responsables con el medio ambiente: Todos los materiales utilizados son cuidadosamente seleccionados para reducir el impacto ambiental, desde su extracción hasta su reciclaje o reutilización.
Ventilación de última generación: El sistema de ventilación con intercambiador de calor mantiene un ambiente saludable, proporcionando una temperatura constante y cómoda durante todo el año.
Eficiencia a largo plazo: Aunque la inversión inicial sea algo superior, en menos de una década recuperarás la diferencia gracias al ahorro en energía y a la reducción de los costes operativos.
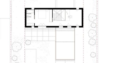
Respecto a la vivienda, este proyecto cuenta con dos plantas diseñadas para garantizar el máximo confort. En la planta baja, disfrutarás de espacios abiertos y luminosos. El salón-comedor se conecta con una moderna cocina con isla, perfecta para compartir momentos en familia. Además, incluye una amplia habitación, un baño completo, y una zona de almacenamiento. En el exterior, podrás relajarte en las zonas con pérgolas y disfrutar de tu piscina privada, un auténtico oasis.
En la planta superior, encontrarás dos espaciosas habitaciones, otro baño completo y una impresionante terraza con vistas panorámicas a la montaña, las viñas y, en los días más despejados, al mar. Cada rincón de esta vivienda está diseñado para aprovechar al máximo la luz natural y las vistas ininterrumpidas.
Esta es tu oportunidad para vivir en un hogar que no solo está pensado para ti, sino también para el futuro del planeta. En Naturalis, nos encargamos de todo para que tú solo tengas que disfrutar de tu nuevo hogar. ¡Contáctanos y te acompañaremos a lo largo de este emocionante viaje!
Las imágenes son meramente ilustrativas y no tienen carácter contractual. El precio no incluye los gastos de notaría, registro, impuestos, permisos, tasas y cualquier otro gasto no previsto en el proyecto. El precio indicado puede variar dependiendo de los ajustes y mejoras solicitadas por el comprador.
Typology
Orientation
Status
Antiquity
Energy consumption
Emissions
Compare offers from different banks.
Choose the Fiber that best suits you.
Save 30% on a 5-star service.
Please let us know about it so we can correct it.