Contrata luz y gas online, sin permanencia
- 3 bdrm.
- 2 bathrooms
- 77 sqm
Flat for sale in Avenida García Bayón, Santa Uxía de Ribeira
Ribeira
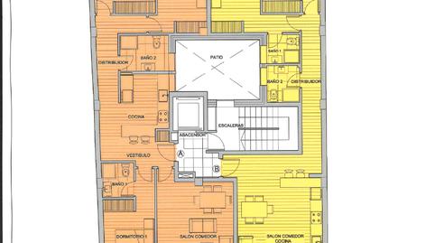
¡Descubre tu nuevo hogar en este espectacular piso de obra nueva! Situado a tan solo cuatro minutos de la hermosa playa de Coroso, este inmueble ofrece unas vistas impresionantes al mar que te dejarán sin aliento. Con una distribución inteligente, la vivienda cuenta con 78 m² construidos, tres acogedores dormitorios y dos modernos baños equipados con platos de ducha y mamparas. La cocina, amueblada y lista para que le des tu toque personal, se complementa con un amplio salón que invita a disfrutar de momentos inolvidables en familia.
Este piso no solo destaca por su ubicación privilegiada, sino también por sus comodidades. Los armarios empotrados ofrecen un espacio de almacenamiento eficiente, mientras que los suelos de parquet y las puertas lacadas en blanco aportan un toque de elegancia. La calefacción de suelo radiante garantiza un confort óptimo durante todo el año. Además, con todos los servicios a mano, como parques infantiles y supermercados, tendrás todo lo que necesitas a tu alcance.
La propiedad incluye una plaza de garaje y un trastero, lo que añade aún más valor a esta magnífica oferta. Con una orientación sur que asegura luz natural durante todo el día, este piso es el lugar perfecto para disfrutar de la vida en la costa. No dejes pasar la oportunidad de vivir en un entorno idílico y moderno. ¡Ven a verlo y enamórate!
Features
Property type
FlatAvailability
AvailableOrientation
SouthHot water
ElectricityHeating
ElectricityAge
Less than 1 yearGarage
PrivateLift
YesFurnished
NoEnergy
Energy rating label:GEmissions:999 kg CO₂ m² / yearEmissions
Energy rating label:GEmissions:999 kg CO₂ m² / year
- Cupboards
- Ceramic Tiles
- Parquet flooring
- Fully equipped kitchen
Interest type
Estimated monthly payment
612 € *
* Provisional, subject to study and offer from CaixaBank
Service offered by
Fotocasa does not act as a financial intermediary. The information provided is for guidance only, based on publicly available market information. The credit institution will contact the potential borrower to negotiate, facilitate, and agree upon the applicable financial conditions.
Mortgage breakdown
Your monthly payment
612 € *
For 30 years (360 payments)
* Provisional, subject to study and offer from CaixaBank
Property price:
178.000 €
Taxes and purchase expenses:
12.583 €
Total property cost:
190.583 €
Savings contributed:
35.600 €
Mortgage amount:
154.983 €
Total interest:
65.470 €
Total cost with mortgage
256.053 €
Principal + interest + taxes and fees
Fotocasa does not act as a financial intermediary. The information provided is for guidance only, based on publicly available market information. The credit institution will contact the potential borrower to negotiate, facilitate, and agree upon the applicable financial conditions.
Elige la Fibra que mejor se adapte a ti.