Floor for sale in Calle Sant Jordi, 34, La Plana
Esplugues de Llobregat
Belongs to No|ba Homes Iii promotion
EN CONSTRUCCIÓN. Promoción de viviendas de 2, 3 y 4 dormitorios en frente de La Rambla del Carme de Esplugues de Llobregat. Próxima parada línea 3 de metro. A 10 minutos de Barcelona.
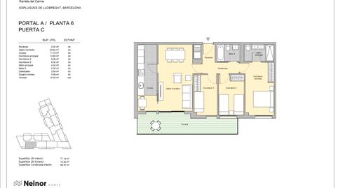
NO|BA Homes III es un conjunto residencial dispuesta de planta baja más 7 alturas, planta baja más 9 alturas y planta baja más 11 alturas, compuesta por 126 viviendas de 2,3 y 4 dormitorios distribuidas entre 3 escaleras.
La promoción está ubicada en un entorno consolidado y de gran valor, situada en la prolongación de La Rambla del Carme de Esplugues de Llobregat.
Se trata de un proyecto donde todas las viviendas disponen de amplias terrazas, con fachadas modernas y cálidas, que combina materiales sostenibles para aportar ahorro energético y ofrecer bienestar y confort. El conjunto residencial destaca por sus zonas comunes que incluyen: piscina comunitaria, solárium, gimnasio exterior, zonas verdes y área de juegos infantiles. Por si fuera poco, también se destinará un local con cocina para que se puedan celebrar las reuniones de comunidad o fiestas infantiles, proporcionando frescor y contacto continuo con la naturaleza.
“Parking y trastero a añadir al importe total de la vivienda”.
Housing features
Basic features
Interior
Energy certificate
Properties of this promotion
4 Housing in this promotion
Belongs to
NO|BA Homes III
Promotion From 358.000 €
Calle Sant Jordi, 34, Esplugues de Llobregat
- Rooms:From 2 to 4
- Bathrooms:From 1 to 2
- Surface:From 65 m² to 107 m²