Contrata luz y gas online, sin permanencia
- 3 bdrm.
- 2 bathrooms
- 105 sqm
- Ground floor
Flat for sale in Zarandona
Murcia Capital
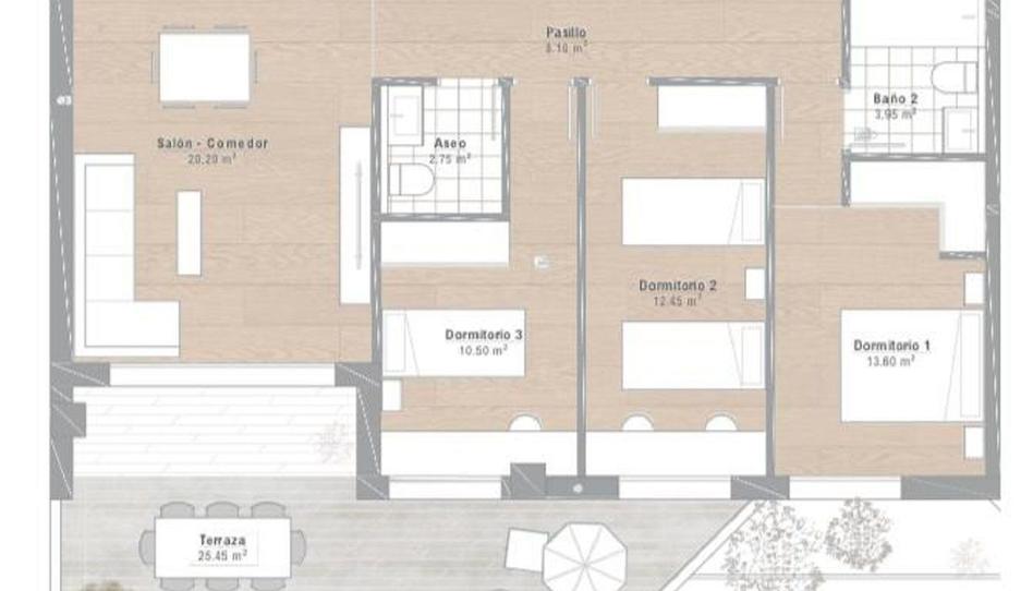
Amplia planta baja de obra nueva: 3 dormitorios y terraza de 25 m²
Ponemos a su disposición esta magnífica planta baja de 105,62 m² construidos, una vivienda que destaca por su amplitud interior y su excelente zona exterior. Su orientación oeste asegura una gran luminosidad natural durante toda la tarde, creando un ambiente cálido y acogedor en las estancias principales.
Distribución y zona exterior:
La vivienda cuenta con una distribución equilibrada, compuesta por 3 amplios dormitorios y 2 baños completos. El salón con cocina integrada fluye de manera natural hacia una terraza privada de 25,45 m², un espacio ideal para disfrutar de la vida al aire libre, cenas familiares y momentos de relax en un entorno privado.
Memoria de calidades y eficiencia:
Esta propiedad ha sido construida siguiendo los más altos estándares actuales, empleando materiales de primera calidad:
Confort térmico y acústico: Carpintería exterior de PVC con doble acristalamiento, garantizando un aislamiento óptimo y ahorro energético.
Climatización: Sistema centralizado de aire acondicionado frío-calor.
Pavimentos y acabados: Suelo de tarima flotante que aporta una estética moderna y gran calidez. Puerta de entrada acorazada para máxima seguridad.
Baños: Equipados con materiales de alta gama y muebles de lavabo de diseño contemporáneo.
Detalles técnicos: Mecanismos eléctricos de primera calidad y tomas de TV en salón, cocina y todos los dormitorios.
Zonas comunes y anexos:
El inmueble se encuentra dentro de un residencial privado con jardín y piscina comunitaria, perfecto para el ocio familiar. Además, el precio incluye plaza de garaje, aportando la funcionalidad necesaria para el día a día en la ciudad.
Una vivienda espaciosa, eficiente y con una terraza excepcional, ideal para familias que buscan calidad de vida y acabados premium. [IW]
More filters
Property type
FlatAvailability
AvailableOrientation
WestFloor
Ground floorLift
YesFurnished
NoEnergy
Energy rating label:GEmissions:999 kg CO₂ m² / yearEmissions
Energy rating label:GEmissions:999 kg CO₂ m² / year
- Air Conditioning
- Cupboards
- Heating
- Terrace
- Box room
- Kitchen/breakfast room
- Security Door
- Community swimmingpool
Interest type
Estimated monthly payment
1.167 €
Service offered by
Fotocasa does not act as a financial intermediary. The information provided is for guidance only, based on publicly available market information. The credit institution will contact the potential borrower to negotiate, facilitate, and agree upon the applicable financial conditions.
Mortgage breakdown
Your monthly payment
1.167 € *
For 30 years (360 payments)
Property price:
334.000 €
Taxes and purchase expenses:
28.084 €
Total property cost:
362.084 €
Savings contributed:
66.800 €
Mortgage amount:
295.284 €
Total interest:
124.738 €
Total cost with mortgage
486.822 €
Principal + interest + taxes and fees
Fotocasa does not act as a financial intermediary. The information provided is for guidance only, based on publicly available market information. The credit institution will contact the potential borrower to negotiate, facilitate, and agree upon the applicable financial conditions.
Elige la Fibra que mejor se adapte a ti.