Connect your home
Choose the Fiber that best suits you.
Donostia - San Sebastián
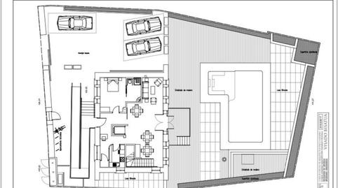
Presentamos una impresionante villa de estilo neo-vasco de principios del siglo XX, antiguo hogar de un cónsul, ubicada en una de las zonas residenciales mas apreciadas de Donostia, actualmente funcionando como un distinguido establecimiento (hotel boutique) de 6 dormitorios con baño incorporado, y una vivienda de tres habitaciones, salón cocina y dos baños, con entrada independiente. Con una superficie útil de 398 M2 distribuidos en cuatro niveles, fué objeto de una reforma integral en el año 2017.
La villa ofrece servicios exclusivos entre los que destacan una magnífica piscina exterior y amplias terrazas, situadas en un jardín cuidadosamente mantenido que garantiza una atmosfera de absoluta privacidad y tranquilidad.
Tiene parking privado.
Lugares de interés cercanos: Playa de la Concha (20 minutos caminando) Playa de Gros ( 12 minutos caminando) Restaurante Arzack, Puerto de San Sebastián (20 minutos caminando), Frontera con Francia: 15 minutos en coche.
Con un historial impecable desde su apertura, esta excepcional villa presenta una oportunidad única, ya sea para quienes buscan una residencia exclusiva o para inversores en el sector del turismo de lujo.
Para más información, venga a visitarnos a cualquiera de nuestras oficinas más cercanas en:
- Avenida de Navarra 19 bajo, junto a Ogiberri en BEASAIN.
- Centro Comercial Carrefour en OLABERRIA. [IW]
Property type
Availability
Hot water
Condition
Age
Lift
Furnished
Energy
Emissions
Interest type
Estimated monthly payment
8.850 € *
* Provisional, subject to study and offer from CaixaBank
Are you already looking for finance?
We help you find the option that best suits you.
Service offered by
Fotocasa does not act as a financial intermediary. The information provided is for guidance only, based on publicly available market information. The credit institution will contact the potential borrower to negotiate, facilitate, and agree upon the applicable financial conditions.
Your monthly payment
8.850 € *
For 30 years (360 payments)
* Provisional, subject to study and offer from CaixaBank
Property price:
2.600.000 €
Taxes and Fees:
159.785 €
Total property cost:
2.759.785 €
Savings contributed:
520.000 €
Mortgage amount:
2.239.785 €
Total Interest:
946.164 €
Total cost with mortgage
3.705.949 €
Principal + interest + taxes and fees
Are you already looking for finance?
We help you find the option that best suits you.
Service offered by
Fotocasa does not act as a financial intermediary. The information provided is for guidance only, based on publicly available market information. The credit institution will contact the potential borrower to negotiate, facilitate, and agree upon the applicable financial conditions.
Choose the Fiber that best suits you.
Get electricity and gas online, no contract required
Please let us know about it so we can correct it.