Contrata luz y gas online, sin permanencia
- 3 bdrm.
- 125 sqm
Flat for sale in Calle Mayor, Algete Centro
Algete
INMOBILIARIA TECNICA NORTE VENDE la promoción MAYOR 11 promovida por HORFAVEN 2008 S.L. se encuentra ubicada en el centro de Algete en una de las mejores parcelas que ofrece este municipio. Haciendo esquina con las calles Mayor y Alcalá esta parcela reúne unas características de tamaño y emplazamiento que dotan a la promoción de exclusividad y lujo, aspectos en actual demanda en el municipio.
La promoción MAYOR 11 consta de 6 viviendas en bloque con acceso desde la calle Alcalá. La zona común está diseñada para aprovechar las exigencias urbanísticas y CTE y dar un aprovechamiento de la superficie destinada aportando ventilación e iluminación natural al acceso de las viviendas. De este modo, la zona común no responde solo a un aspecto funcional sino que adquiere un protagonismo espacial y visual con dos fachadas enfrentadas y una escalera abierta central. Se convierte así en un espacio de encuentro y vivencias entre los vecinos que disfrutan de una zona común diseñada como un gran hall recibidor abierto lleno de luz y ventilación naturales.
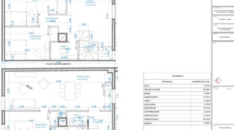
La notable pendiente de las rasantes de la calle hacen que los niveles de las viviendas sean distintas a un lado y al otro de la zona común, aparentemente un solo edificio desde el exterior por dentro se compone de cuatro niveles distintos desde donde acceder a las viviendas.
En planta baja se ubican 3 apartamentos muy bien iluminados, de líneas simples y espacios amplios, funcional e idóneo como pequeña vivienda se ha priorizado grandes espacios como salón, cocina y comedor y una gran habitación.
En planta primera se ubican 3 viviendas grandes conectadas por una escalera privada al nivel de bajocubierta. Dotadas de 3 habitaciones y un despacho amplio estas viviendas disfrutan de mucho espacio y estancias bien organizadas sin privarse de una gran iluminación con grandes balconeras y amplias ventanas de cubierta, así como de pequeños detalles de diseño como espacios a doble altura.
Dotadas de la última tecnología y gran eficiencia energética, las viviendas están dotadas de un sistema de suelo radiante calefactante y refrescante y una envolvente que, sin perder la estética rural, dota al edificio de un gran aislamiento acústico y térmico. Con una calificación energética A, las viviendas ofrecen un rendimiento acorde a las exigencias medioambientales actuales.
#ref:1871TN
More filters
Property type
FlatAvailability
AvailableCondition
For renovationLift
NoFurnished
NoEnergy
Energy rating label:GEmissions:999 kg CO₂ m² / yearEmissions
Energy rating label:GEmissions:999 kg CO₂ m² / year
Interest type
Estimated monthly payment
1.257 €
Service offered by
Fotocasa does not act as a financial intermediary. The information provided is for guidance only, based on publicly available market information. The credit institution will contact the potential borrower to negotiate, facilitate, and agree upon the applicable financial conditions.
Mortgage breakdown
Your monthly payment
1.257 € *
For 30 years (360 payments)
Property price:
367.420 €
Taxes and purchase expenses:
24.244 €
Total property cost:
391.664 €
Savings contributed:
73.484 €
Mortgage amount:
318.180 €
Total interest:
134.411 €
Total cost with mortgage
526.075 €
Principal + interest + taxes and fees
Fotocasa does not act as a financial intermediary. The information provided is for guidance only, based on publicly available market information. The credit institution will contact the potential borrower to negotiate, facilitate, and agree upon the applicable financial conditions.
Elige la Fibra que mejor se adapte a ti.