Connect your home
Choose the Fiber that best suits you.
Valladolid Capital
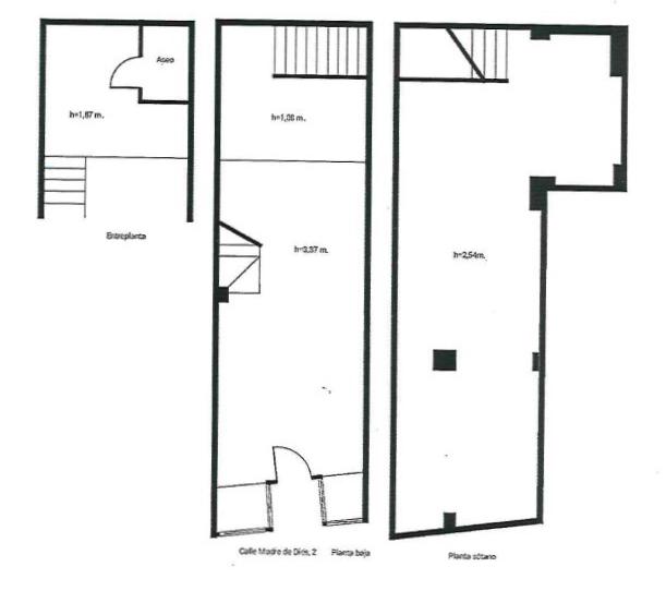
Con 82 m² de potencial puro distribuidos en dos niveles diáfanos, este lugar te ofrece un lienzo en blanco para materializar tus ambiciones. Su escaparate, que abraza toda la fachada, no solo garantiza una visibilidad excepcional para tu negocio, sino que también promete ser el ventanal de tu futuro hogar.
Para el Emprendedor Visionario: Visualiza tu marca brillando en una ubicación estratégica, con un flujo constante de clientes gracias a la cercanía de colegios y el Hospital Clínico. Este es el escenario donde tu negocio no solo nace, sino que prospera. Te asesoramos en la búsqueda de subvenciones para que tu único foco sea el éxito.
Para el Inversor Estratégico: Descubre una inversión de alta rentabilidad en una zona con una demanda insaciable de trasteros. Transforma este espacio en una fuente de ingresos pasivos y recurrentes. Una jugada maestra en el tablero inmobiliario de Valladolid.
Para el Creador de Hogares Únicos: Convierte este espacio en el loft de diseño con el que siempre has soñado. Imagina una vivienda con espacios abiertos y una personalidad arrolladora, en una zona tranquila y con todos los servicios a tu alcance.
Esta es una de esas oportunidades que definen un antes y un después. Un activo tan versátil y en una ubicación tan privilegiada es una joya que no permanecerá mucho tiempo en el mercado.
No dejes que tu futuro espere. Solicita una visita hoy mismo y siente el poder de transformar este espacio en tu realidad.
Property type
Condition
Age
Furnished
Energy
Emissions
Interest type
Estimated monthly payment
250 € *
* Provisional, subject to study and offer from CaixaBank
Are you already looking for finance?
We help you find the option that best suits you.
Service offered by
Fotocasa does not act as a financial intermediary. The information provided is for guidance only, based on publicly available market information. The credit institution will contact the potential borrower to negotiate, facilitate, and agree upon the applicable financial conditions.
Your monthly payment
250 € *
For 30 years (360 payments)
* Provisional, subject to study and offer from CaixaBank
Property price:
69.900 €
Taxes and Fees:
7.333 €
Total property cost:
77.233 €
Savings contributed:
13.980 €
Mortgage amount:
63.253 €
Total Interest:
26.720 €
Total cost with mortgage
103.953 €
Principal + interest + taxes and fees
Are you already looking for finance?
We help you find the option that best suits you.
Service offered by
Fotocasa does not act as a financial intermediary. The information provided is for guidance only, based on publicly available market information. The credit institution will contact the potential borrower to negotiate, facilitate, and agree upon the applicable financial conditions.
Choose the Fiber that best suits you.
Save 30% on a 5-star service.
Please let us know about it so we can correct it.