Building in Tres Olivos - Valverde
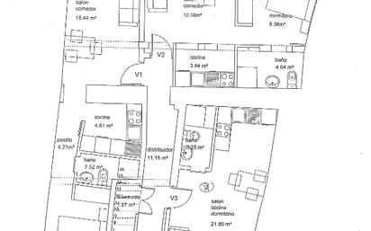
La Inmobiliaria Internacional CPM gestiona este magnífico edificio de uso residencial, de 264 m2, 2 plantas( y posibilidad de hacer una tercera planta) y 7 apartamentos, próximo al metro de Fuencarral, que consta de los siguientes elementos: Planta baja: Consta de tres apartamentos, de 1 dormitorio, salón con cocina americana totalmente equipada y amueblada, con todos los electrodomésticos incluidos. 1 baño completo Primera planta: Consta de cuatro apartamentos, de 1 dormitorio, con cocina totalmente equipada y amueblada, con todos los electrodomésticos incluidos. 1 baño completo El edificio de uso residencial, en rentabilidad, de estilo clásico, dispone de suelos de tarima, puertas blindadas, ventanas climalit, agua caliente y calefacción individual por caldera de gas natural. Sobre la ubicación del edificio, es inmejorable, ya que se encuentra próximo a la estación de metro de de Fuencarral. Paradas de taxis y diferentes líneas de autobús paran enfrente del inmueble. El Acceso a la M-11 Y A-1 es muy rápido. Alrededor del inmueble se encuentran varios centros comerciales (Centro Comercial Montecarmelo, Centro Comercial Corte ingles), colegios, (Colegio Tres Olivos, Colegio concertado Sagrado Corazón), guarderías, centros deportivos, parques (Parque Fuencarral, Parque Santa Ana) farmacias, hospitales y variedad de restaurantes.
- 7 rooms ·
- 7 bath ·
- 264 m²
