Contrata luz y gas online, sin permanencia
- 357 sqm
Building for sale in Gurb, Nord
Vic
Te gustará saber:
· Edifici en venda situat a menys de 5 minuts a peu del Passeig, la Plaça Major, l'estació de tren i bus, i amb tots els serveis i comerços al voltant, en una de les zones més cèntriques i sol·licitades de Vic.
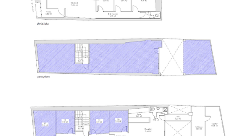
· La finca consta de planta baixa amb local comercial actualment buit i disponible, i dues plantes pis en procés de desnonament ja avançat; ideal per inversors que vulguin obtenir rendibilitat a curt termini.
· L'edifici no disposa de divisió horitzontal actualment, però és una operació viable un cop completats els desnonaments, obrint la porta a una futura venda fraccionada o a la regularització per lloguer individual.
· Es tracta d'una oportunitat clara per comprar, finalitzar els tràmits judicials, reformar i obtenir una alta rendibilitat mitjançant lloguer o venda posterior.
· La rendibilitat esperada només amb la finalització dels desnonaments supera el 25%, amb un potencial encara més alt un cop reformats els habitatges.
· De moment només és possible visitar el local comercial; els pisos no són visitables fins a la finalització del procés legal.
· Demana més informació per conèixer l’estat actual dels desnonaments i l’estratègia recomanada per maximitzar el retorn.
Es especial por:
· La seva alta rendibilitat i les diverses formes d'executar l'inversió.
More filters
Property type
BuildingAge
+ 100 yearsEnergy
Energy rating label:ExemptEmissions
Energy rating label:Exempt
Interest type
Estimated monthly payment
666 €
Service offered by
Fotocasa does not act as a financial intermediary. The information provided is for guidance only, based on publicly available market information. The credit institution will contact the potential borrower to negotiate, facilitate, and agree upon the applicable financial conditions.
Mortgage breakdown
Your monthly payment
666 € *
For 30 years (360 payments)
Property price:
185.000 €
Taxes and purchase expenses:
20.496 €
Total property cost:
205.496 €
Savings contributed:
37.000 €
Mortgage amount:
168.496 €
Total interest:
71.179 €
Total cost with mortgage
276.675 €
Principal + interest + taxes and fees
Fotocasa does not act as a financial intermediary. The information provided is for guidance only, based on publicly available market information. The credit institution will contact the potential borrower to negotiate, facilitate, and agree upon the applicable financial conditions.
Elige la Fibra que mejor se adapte a ti.