Connect your home
Choose the Fiber that best suits you.
Palamós
Encantador hotel boutique listo para su reapertura, ubicado en el centro de Palamós, uno de los destinos más auténticos y atractivos de la Costa Brava.
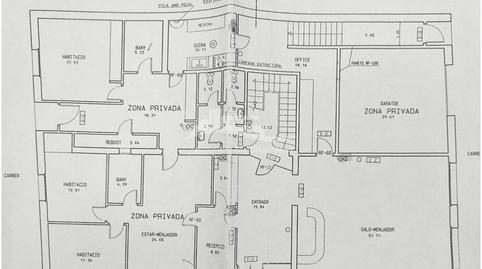
El edificio, distribuido en planta baja y dos niveles superiores, cuenta con 23 habitaciones, todas renovadas en 2023, junto con sus baños completamente actualizados. En la planta baja se encuentra un amplio apartamento independiente con garaje, ideal para uso del propietario o como alojamiento adicional.
El hotel dispone de zona de restaurante con cocina equipada, perfecta para explotación propia o arrendamiento, generando ingresos adicionales desde el primer día.
Además, existe la posibilidad de ampliar hasta un 30% la superficie del último piso, creando un dúplex o ático exclusivo, lo que incrementa el valor y el potencial de ingresos del inmueble.
A pocos minutos del paseo marítimo y de la playa, ofrece a los huéspedes la experiencia mediterránea completa: gastronomía local, ambiente relajado y vida del centro urbano.
💡 Oportunidad para inversores: en Palamós hay escasez de hoteles boutique en este rango de precios, lo que garantiza alta ocupación y rentabilidad estable. El edificio también ofrece potencial para transformarse en aparthotel o alojamiento flexible para estancias todo el año, ampliando las oportunidades de negocio.
📸 Más información detallada y fotografías adicionales disponibles bajo solicitud.
Un hotel con carácter y gran potencial, renovado en 2023 y listo para abrir sus puertas y generar ingresos desde el primer día.
Property type
Condition
Energy
Emissions
Interest type
Estimated monthly payment
4.958 € *
* Provisional, subject to study and offer from CaixaBank
Service offered by
Fotocasa does not act as a financial intermediary. The information provided is for guidance only, based on publicly available market information. The credit institution will contact the potential borrower to negotiate, facilitate, and agree upon the applicable financial conditions.
Mortgage breakdown
Your monthly payment
4.958 € *
For 30 years (360 payments)
* Provisional, subject to study and offer from CaixaBank
Property price:
1.390.000 €
Taxes and purchase expenses:
142.785 €
Total property cost:
1.532.785 €
Savings contributed:
278.000 €
Mortgage amount:
1.254.785 €
Total interest:
530.065 €
Total cost with mortgage
2.062.850 €
Principal + interest + taxes and fees
Fotocasa does not act as a financial intermediary. The information provided is for guidance only, based on publicly available market information. The credit institution will contact the potential borrower to negotiate, facilitate, and agree upon the applicable financial conditions.
Choose the Fiber that best suits you.
Get electricity and gas online, no contract required
Please let us know about it so we can correct it.