Contrata luz y gas online, sin permanencia

Hernani
Antigua oficina bancaria, perfectamente acondicionada y en perfecto estado. Se encuentra situada en el centro de Hernani, en una zona con gran flujo peatonal y con un marcado caracter comercial.
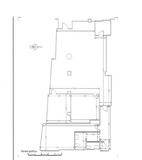
Cuenta con una superficie aproximada en planta calle de 180m2 distribuidos en una amplia zona de atención al cliente, dos despachos compartimentados mediante cristal, una ampilo almacen interior y dos baños uno de ellos habilitado para minusvalidos. Accesibilidad cota cero.
En la actualidad dispone de licencia de actividad para uso oficina, aunque por su localización,superficie y accesibilidad resulta idoneo para todo tipo de actividad profesional o comercial.
INMOBILIARIA ARRIGAIN, oficina en San Sebastián, avda. Libertad, 1 bajo. Telf.: 943 450 666
Horario: De lunes a jueves de 9h a 19h y los viernes de 9h a 14h y de 16h a 19h
Immobilientyp
Zustand
Möbliert
Energie
Emissionen
Contrata luz y gas online, sin permanencia

Elige la Fibra que mejor se adapte a ti.

Sagen Sie uns, was Sie entdeckt haben, damit wir es korrigieren können.