Elige la Fibra que mejor se adapte a ti.
- 3 Badezimmer
- 220 m²
- Ground
Büro zur Miete in Carrer Alt de Gironella, 30, Les Tres Torres
Barcelona Capital
Encantadora casa unifamiliar de tres plantas con jardín, esquinera a tres vientos en el prestigioso barrio de las Tres Torres. Construida a principios del siglo XX y reformada manteniendo el estilo de la época. La luminosidad que entra en la vivienda gracias a sus grandes balconeras y ventanales la hacen todavía más especial. Es perfecta para los amantes de la arquitectura clásica.
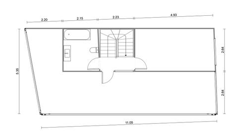
Cuenta con una superficie de 222 m2, repartidos en tres plantas: Pl. Baja y 1ª planta de 80m2 y 3ª planta de 62m2. Disfruta también de dos agradables terrazas cuadradas, una de ellas cubierta y un jardín de 30 m2 aproximadamente. VER PLANO
Todas las estancias son exteriores y de grandes dimensiones con balcón o gran ventanal.
Calefacción de gas y aire acondicionado por splits, suelos de parquet.
La vivienda es a tres vientos con la mejor orientación sur-este, oeste y noroeste. Prácticamente disfruta de sol durante todo el día.
En la primera planta encontramos un bonito recibidor desde el que se accede a tres salas, una de ellas con una bonita tribuna, cocina independiente y baño.
La segunda planta consta de tres salas con salida a una agradable terraza, terraza cubierta y un segundo baño.
La tercera planta está dispuesta por otra sala, baño y una gran estancia totalmente acristalada de 36m2.
Perfecta para infinidad de negocios que busquen una imagen con personalidad.
Magnífica ubicación por su cercanía a las Rondas
Si se solicita vado se podría aparcar en el jardín.
Eigenschaften
Immobilientyp
BüroAusrichtung
SüdwestenWarmwasser
ErdgasHeizung
ErdgasZustand
Sehr gutAlter
+ 100 JahreEtage
Erdgeschoss / ParterreAufzug
NeinMöbliert
NeinEnergie
Energielabel:DEmissionen:100 kg CO₂ m² / JahrEmissionen
Energielabel:DEmissionen:25 kg CO₂ m² / Jahr
- Klimaanlage
- Terrasse
- Abstellraum
- Wohnküche
- Innenhof
- Balkon
Preisinformationen
- Mietpreis:
- 5.800 € /monat
- Mietpreis-Referenzsatz:
- Vom Inserenten nicht angegeben/gilt nicht