Wohnung von 45 m² an Malpica de Tajo
Malpica de Tajo
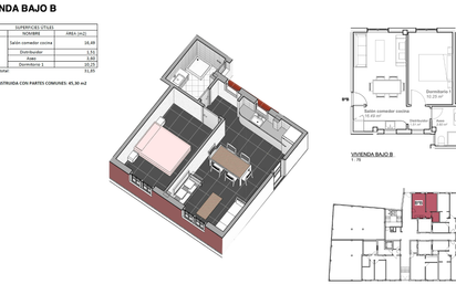
PISO EN VENTA EN MALPICA DE TAJO A ESTRENAR. Este piso en planta baja , se esta reformado y se entregara para que tu lo estrenes. El pavimiento interior de la vivienda, es de tarima flotante, menos wc y cocina que es de ceramica gres, sus ventanas son de aluminio blanco, con acristalamiento termico , tipo climalit Sistema de climatizacion mediante split, con bomba de frio y calor en salon y dormitorio Pintura interior con gota, puertas interiores de paso, con acabado en color roble y puerta entrada a la vivienda tambien roble, blindada. Son pisos que se entregaran aproximadamente en septiembre 2026, YA PUEDES VISITARLOS Y RESERVAR. SOLO NOS QUEDAN 5 VIVIENDAS, DE 17 QUE SON LA PROMOCION. PIDE TU CITA PARA VERLOS SIN COMPROMISO. [IW]
- 1 zim·
- 1 bad·
- 45 m²·
- Ground