Contrata luz y gas online, sin permanencia

Barcelona Capital
Inmueble en finca regia con ascensor y gran potencial de reforma en Barcelona!
Descubre este luminoso piso de 92 m² construidos situado en una elegante finca regia con ascensor, una propiedad con carácter, historia y extraordinario potencial de reforma en una de las zonas más consolidadas de Barcelona.
Encanto original y elementos clásicos
La vivienda conserva elementos arquitectónicos originales muy valorados en las fincas regias de Barcelona:
? Suelos de mosaico hidráulico original
? Techos altos con molduras
? Carpintería de época
? Balcones a fachada principal y posterior, que aportan luz natural y ventilación cruzada
Estos detalles aportan personalidad y autenticidad a una vivienda difícil de encontrar en el mercado actual.
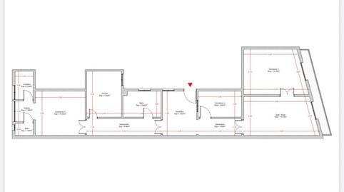
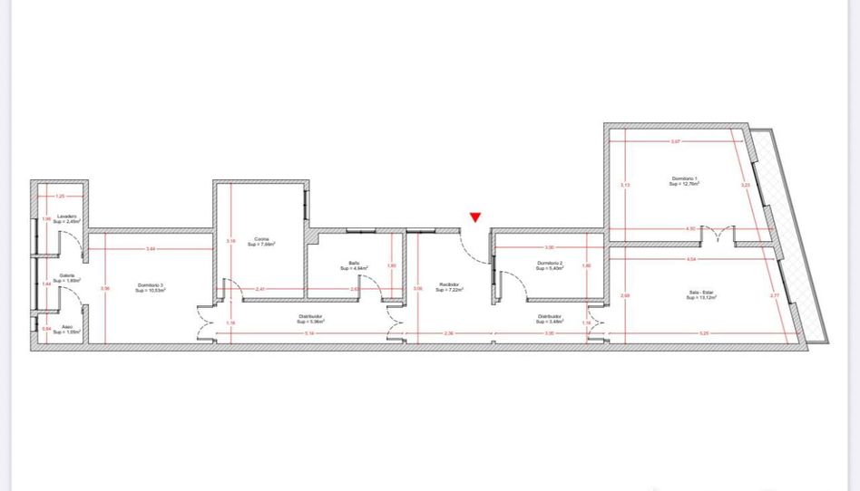
Distribución amplia y luminosa
Ubicado en un tercer piso real, el inmueble ofrece una distribución funcional con múltiples posibilidades de actualización:
? 3 dormitorios , 2 exteriores con luz natural, 1 interior.
? 1 baño completo + 1 aseo de cortesía
? Amplia cocina office independiente
? Zona de lavadero
? Salón con salida a balcón exterior
La orientación y los grandes ventanales garantizan una excelente entrada de luz natural durante todo el día.
Gran potencial de reforma
El piso ofrece múltiples posibilidades de redistribución para adaptarlo a un estilo de vida contemporáneo:
? Integrar cocina abierta con zona de día
? Diseñar espacios diáfanos más amplios
Finca regia en zona consolidada
El precio no incluye los gastos de gestión del 1,5% sobre el precio final , asumidos por el comprador. Nuestro servicio integral incluye: Búsqueda personalizada de inmuebles Negociación de condiciones óptimas Asesoramiento financiero, técnico y legal Acompañamiento hasta notaría y posventa
Ubicado en una finca regia clásica con entrada representativa, en un entorno residencial muy valorado de Barcelona, rodeado de comercios, servicios, transporte público y zonas verdes.
La propiedad dispone además de trastero comunitario.
Una oportunidad única
Una vivienda con carácter, historia y gran potencial de revalorización, ideal para quienes buscan diseñar un hogar personalizado en una finca regia de Barcelona.
Solicita tu visita privada y descubre el potencial de esta propiedad.
Immobilientyp
Verfügbarkeit
Ausrichtung
Warmwasser
Heizung
Zustand
Alter
Etage
Aufzug
Möbliert
Energie
Emissionen
Zinsart
Geschätzte monatliche Rate
1.770 €
Dienstleistung angeboten von
Fotocasa agiert nicht als Finanzvermittler. Die bereitgestellten Informationen dienen lediglich der Orientierung und basieren auf öffentlich zugänglichen Marktinformationen. Das Kreditinstitut wird den potenziellen Kreditnehmer kontaktieren, um die anwendbaren finanziellen Bedingungen zu verhandeln, zu erleichtern und zu vereinbaren.
Hypothekenaufschlüsselung
Ihre monatliche Rate
1.770 € *
Für 30 Jahre (360 Raten)
Immobilienpreis:
495.000 €
Steuern und Kaufnebenkosten:
51.847 €
Gesamtkosten der Immobilie:
546.847 €
Eingebrachte Ersparnisse:
99.000 €
Hypothekenbetrag:
447.847 €
Gesamtzinsen:
189.186 €
Gesamtkosten mit Hypothek
736.033 €
Kapital + Zinsen + Steuern und Kosten
Fotocasa agiert nicht als Finanzvermittler. Die bereitgestellten Informationen dienen lediglich der Orientierung und basieren auf öffentlich zugänglichen Marktinformationen. Das Kreditinstitut wird den potenziellen Kreditnehmer kontaktieren, um die anwendbaren finanziellen Bedingungen zu verhandeln, zu erleichtern und zu vereinbaren.
Contrata luz y gas online, sin permanencia

Elige la Fibra que mejor se adapte a ti.

Sagen Sie uns, was Sie entdeckt haben, damit wir es korrigieren können.