Geschaftsraum an Avenida del Reino de Valencia, Gran Via
Gran Via, Valencia Capital
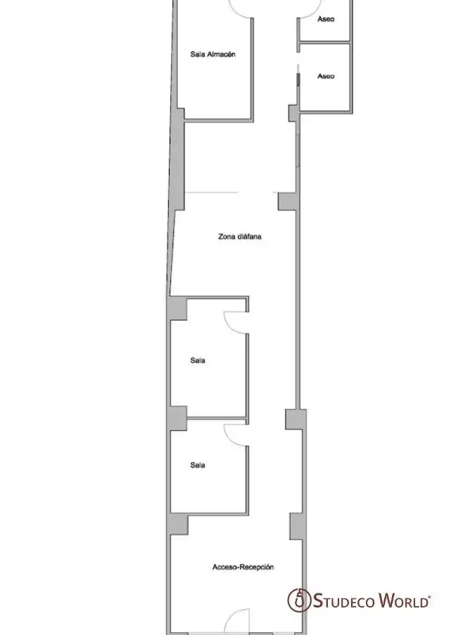
Presentamos un atractivo local comercial ubicado en la prestigiosa zona del Ensanche. una de las zonas más demandadas y emblemáticas de Valencia. Cuenta con una superficie total construida de 133 m2 y útil de 129 m2, este espacio se encuentra en buen estado y ofrece múltiples posibilidades para su uso comercial. Consta de dos baños, uno de ellos adptado y una zona de almacenaje. Su orientación sur garantiza luminosidad natural durante todo el día. Además, cuenta con dos baños que facilitan la operatividad diaria. La ubicación es inmejorable; rodeada por una avenida rodeada de árboles y autobuses cercanos con fácil acceso al metro, así como a importantes centros comerciales e instituciones educativas destacadas en la zona. También está próxima a hospitales y zonas infantiles ideales para familias o profesionales jóvenes buscando establecerse cerca servicios básicos necesarios. Contacta con nosotros para ampliar información en el +34 607367022 o bien envianos una solicitud. Impuestos, Gastos de Notaría y Registro de la Propiedad, y honorarios de agencia NO INCLUIDOS
- 2 bad·
- 133 m²·
- Klimaanlage