Gebäude an Barri Antic
Barri Antic, Manresa
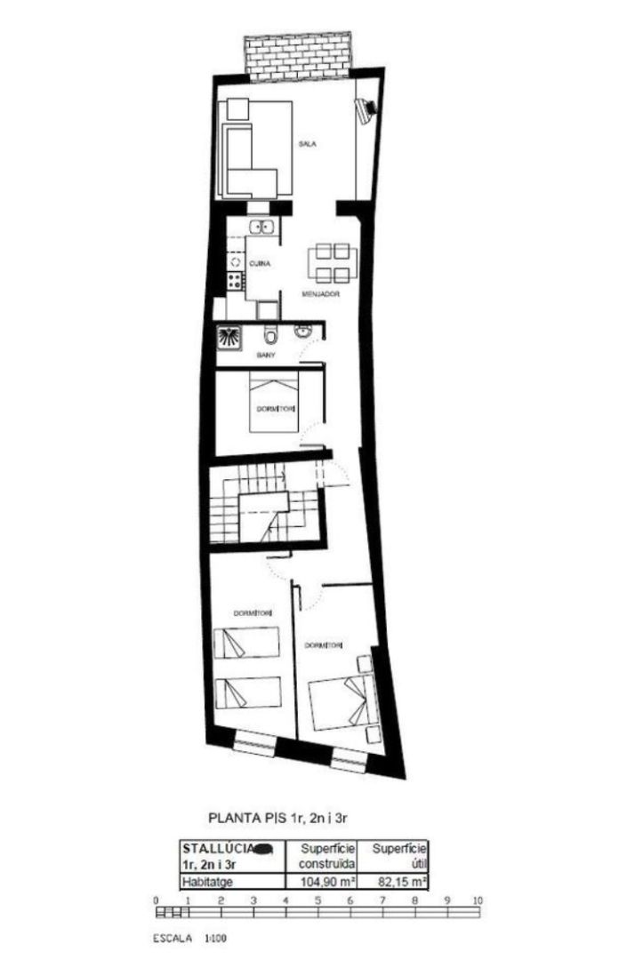
EDIFICIO EN VENTA EN EL CORAZON DE MANRESA CON DOS LOCALES Y CINCO VIVIENDAS - Presentamos este magnífico edificio ubicado en la privilegiada zona de Manresa Centre - Jorba, una oportunidad única para inversores y desarrolladores. Con una superficie total construida de 410 m2, esta propiedad semireformada cuenta con un diseño versátil que permite diversas opciones con dos locales en planta baja y cinco viviendas independientes, lo cual facilita su adaptación a diferentes necesidades residenciales o comerciales. PLANTA BAJA: Local comercial 28m2 + local-almacén 41m2. PLANTA ENTRESUELO: Vivienda de 69m2, semireformada, distribución: 2 habitaciones dobles (16m2-10m2), baño (6m2-3piezas-bañera), cocina americana con vitroceramica, comedor (20m2), suelos gres, calefacción de gas, carpintería exterior aluminio doble vidrio, carpintería interior nogal, 3 balcones (3m2-3m2-1.5m2). PLANTA PRIMERA: Vivienda de 69m2, semireformada, distribución: 2 habitaciones dobles (12m2-12m2) y habitación individual (7m2), cocina independiente (6m2), sala independiente al lado de la cocina (9m2), comedor (12m2), baño (4m2-4piezas-bañera), lavadero (3m2), suelos de gres, carpintería interior de cerezo, exterior de aluminio doble vidrio, aire acondicionado con bomba de calor, balcón (7m2). PLANTA SEGUNDA: Vivienda de 65m2, rehabilitado, distribución: 2 habitaciones dobles (12m2-12m2) y habitación individual (9m2), cocina independiente (5m2), 2 comedores (12m2-9m2), baño (4m2-4piezas-bañera), lavadero (3m2), suelos de gres, carpintería interior de roble, exterior de aluminio doble vidrio, 2 balcones (2m2-2m2). PLANTA TERCERA: Vivienda de 69m2, rehabilitado, distribución: 2 habitaciones (13m2-13m2) y habitación individual (8m2), cocina independiente (7m2), comedor (12m2), baño (5m2-4piezas- bañera), suelos de gres, carpintería interior de roble, exterior de aluminio doble vidrio, aire acondicionado, 2 balcones (2m2-2m2). PLANTA ATICO: Vivienda de 69m2, en buen estado, distribución: una habitación doble (12m2) y una habitación individual (8m2), cocina independiente (6 m2), comedor (17m2), 2 baños (4m2-3piezas-1/2 bañera/3m2-3piezas-ducha), carpintería interior de cerezo, suelo de gres, carpintería exterior de aluminio / climalit., aire acondicionado con bomba frío y calor, luminoso, trastero (4m2), 2 balcones (6m2-6m2) y una terraza (50m2). La ubicación estratégica del edificio proporciona fácil acceso a servicios esenciales e infraestructura urbana destacada, consolidando aún más su atractivo como inversión inmobiliaria clave en la región.
- 410 m²
