125.000 €
Loft a Mestalla
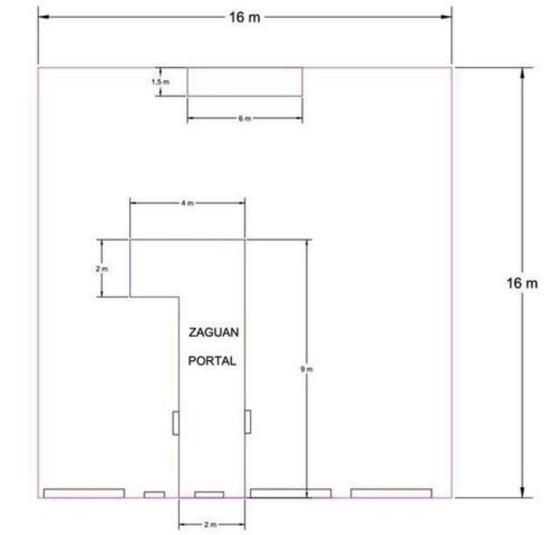
Se venden 2 locales en una de las mejores zonas de Valencia, cerca de las mejores playas y la Marina Real, de las entradassalidas de la ciudad, cerca del centro, colegios, hospitales y demás puntos de interés (c.c. el Saler). En plena columna vertebral del futuro PAI que unirá el Grao con las Moreras, orientación de sol inmejorable y delante de una calle amplia, por lo que nunca podrán construir delante. Actualmente diáfanos y con alturas de casi 4 metros, tb admitiría por metros y disposición desde un gran loft con todo lujo de detalles, hasta 5 apartamentos más pequeños (sarquitecto). Precio unitario por local. A estudiar el alquiler con opcion a compra.
- 5 habs ·
- 5 baños ·
- 250 m² ·
- baixos
Anunciant Particular
