Calcula tu hipoteca
Compara ofertas de distintos bancos.
Madrid Capital
TECNOCASA ESTUDIO BETANZOS VENDE:
Vivienda de tres dormitorios en la zona de Barrio del Pilar-Fuencarral-Peñagrande, en la calle Chantada.
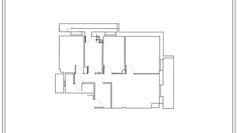
El inmueble de esquina está distribuido en tres dormitorios, salón, cocina, baño y dos terrazas.
Dispone de calefacción individual a gas natural. Ventanas de climalit con rotura de puente termico. Media reforma. Vivienda luminosa con doble orientación, tanto norte como este.
La finca se encuentra rodeada de zonas verdes a escasos minutos de la Dehesa de la Villa y del parque de Rodríguez Sahagun, con superficies comerciales: (Dia, Carrefour, Mercadona y Ahorramas) cercanos así como el centro de salud Ramón Castroviejo a escasos metros. Polideportivos y varios colegios cercanos: Ntra. Sra. De La Vega, Luis de Gongora, Colegio Virgen Del Pilar y Gregorio Marañon.
Metro Linea 7 Peñagrande y Antonio Machado y lineas de autobuses 49, 128, 126, 147, 42, 132, 137, 83, 605, n22 y n23. Acceso rápido a Sinesio Delgado, Plaza de Castilla, M30 Norte, M30 Sur, M40, A6, A1 y A2.
Con KIRON y sus asesores financieros podrá encontrar la hipoteca que mejor se adapte a sus necesidades de financiación. Puede beneficiarse de los convenios que tiene el Grupo Tecnocasa con diferentes entidades bancarias, con posibilidad de financiación hasta 100%. Solicite un estudio gratis y sin compromiso.
Tipo de inmueble
Antigüedad
Planta
Ascensor
Consumo energía
Emisiones
Compara ofertas de distintos bancos.
Elige la Fibra que mejor se adapte a ti.
Ahorra un 30% en un servicio 5 estrellas.
Cuéntanos qué has visto para poder corregirlo.