Conecta tu hogar
Elige la Fibra que mejor se adapte a ti.
Esparreguera
Edificio de 14 viviendas A CONSTRUIR en la zona centro de Esparreguera
Piso 3º-3ª de 89m2 + 5.85m2 de terrazas
3 habitaciones (1 suït + 1 doble + 1 individual), 2 baños, comedor-cocina de 32m2 muy luminoso.
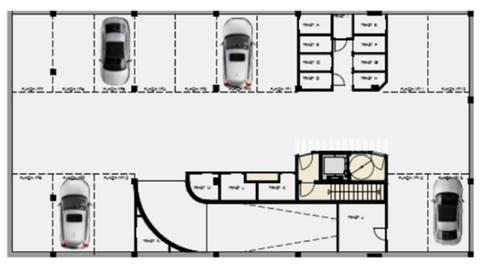
Plaza de parquing opcional en el mismo edificio por 18.000€
Zonas comunes de + de 300m2 con PISCINA, parquing bicis privado, ático con terraza y SALA PARA USO COMUNITARIO con cita previa, con vistas a Montserrat, parquings y trasteros.
La cocina se entrega con muebles de HPL (laminado alta presión) altos y bajos de gran capacidad. Línea LED integrada bajo muebles altos. Placa de inducción, horno eléctrico, microondas y campana integrada.
Vivienda con iluminación LED. Ojos de buey empotrados en baños, cocina y zonas de paso.
Preinstalación de PLACAS FOTOVOLTAICA.
Sistema integral de aerotemia para ACS, calefacción por suelo radiante y climatización de aire por conductos.
Sistema de alta eficacia, que se basa en el aprovechamiento de la energía latente en el aire, tanto en frio como en calor.
Grifos monomando de bajo cabal con aireadores en todos los baños y grifos termostáticos y de bajo cabal en las dichas de los baños principales. Grifos acabado cromado.
Pavimento interior de parquet laminado resistencia C-5.
Pavimento baños de gres porcelánico de gran formato.
Persianas motorizadas de aluminio y carpinteria exterior con doble vidrio bajo emisivo para mejorar la eficiencia energética.
Puerta blindada con cerradura de seguridad.
Zonas comunes ajardinadas
PISCINA comunitaria de 3.5x9m con sistema de filtración salina.
Plaza de parquing privada para bicicleta en el patio.
Plazas de parquing opcionales para vehículos con preinstalación de conexión para carga eléctrica.
Trastero
Cualificación energética A, equivalente a ahorro energético y económico de cada familia.
Este documento tiene una finalidad meramente informativa, y no reviste carácter contractual, si bien los datos que se facilitan se dan de buena fe y se consideran correctos, salvo error u omisión. Estos datos pueden sufrir variaciones debido a cambios ajenos a la empresa. (Impuestos no incluidos en los precios)
Tipo de inmueble
Parking
Ascensor
Amueblado
Consumo energía
Emisiones
Tipo de interés
Cuota mensual estimada
1.061 € *
* Provisional sujeto a estudio y oferta de CaixaBank
¿Ya estás buscando financiación?
Te ayudamos a encontrar la opción que mejor se adapta a ti.
Servicio ofrecido por
Fotocasa no actúa como intermediario financiero. La información proporcionada tiene carácter orientativo, basándose en información pública en el mercado. Será la entidad de crédito quién contacte con el potencial prestatario para negociar, facilitar y pactar las condiciones financieras aplicables.
Tu cuota mensual
1.061 € *
Durante 30 años (360 cuotas)
* Provisional sujeto a estudio y oferta de CaixaBank
Precio del inmueble:
296.000 €
Impuestos y gastos:
31.671 €
Coste total del inmueble:
327.671 €
Ahorro aportado:
59.200 €
Importe de la hipoteca:
268.471 €
Intereses totales:
113.412 €
Coste total con hipoteca
441.083 €
Capital + intereses + impuestos y gastos
¿Ya estás buscando financiación?
Te ayudamos a encontrar la opción que mejor se adapta a ti.
Servicio ofrecido por
Fotocasa no actúa como intermediario financiero. La información proporcionada tiene carácter orientativo, basándose en información pública en el mercado. Será la entidad de crédito quién contacte con el potencial prestatario para negociar, facilitar y pactar las condiciones financieras aplicables.
Elige la Fibra que mejor se adapte a ti.
Ahorra un 30% en un servicio 5 estrellas.
Cuéntanos qué has visto para poder corregirlo.