Casa adosada en Calle de la Calandria, 2, La Montaña - El Cortijo
La Montaña - El Cortijo, Aranjuez
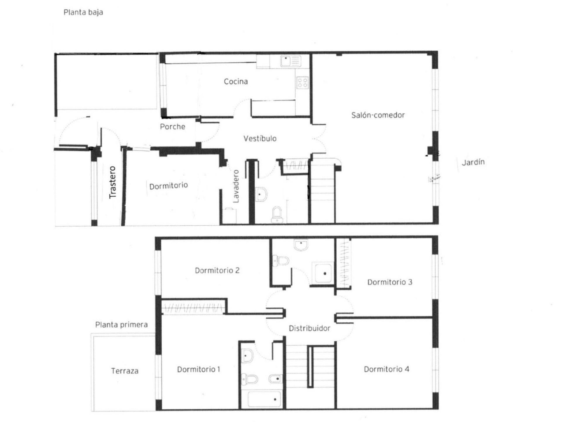
🏡 DESCRIPCIÓN CASA Fantástica casa adosada de 170 en la Urbanización La Montaña, Aranjuez (a menos de 50 km de Madrid y Toledo). Ubicada en la exclusiva Urbanización La Montaña, en la calle Misterio de Elche, la vivienda se encuentra en un entorno tranquilo y familiar que cuenta con zonas verdes de juego y dos piscinas comunitarias: una amplia piscina para adultos y otra más pequeña, ideal para bebés y niños. La vivienda cuenta con dos plantas, perfecta para familias que buscan espacio, comodidad y zonas exteriores para disfrutar todo el año. Distribución cómoda y funcional En la planta baja encontramos un patio de entrada que da acceso a la vivienda. Dispone de garaje privado con acceso directo al interior, cocina independiente totalmente equipada, aseo de cortesía y un amplio salón–comedor. Desde el salón se accede al patio trasero privado, donde encontrarás un magnífico porche acondicionado con bomba de calor y aire acondicionado, lo que permite disfrutar de este espacio tanto en verano como en invierno. Un rincón ideal para comidas, zona chill-out o espacio de juegos. Zona de descanso en planta superior La planta alta alberga cuatro dormitorios y dos baños completos. El dormitorio principal es tipo suite, con baño integrado. Los tres dormitorios son amplios y versátiles, tres de ellos con armarios empotrados y otro perfecto como despacho, cuarto de juegos o de invitados. Toda la casa está climatizada, tanto a través de gas ciudad como con bombas de calor y frío en cada una de las dependencias. Posibilidad de ampliar. La vivienda ofrece además la posibilidad de abrir buhardilla, lo que permite ganar metros adicionales. Destacamos: • Ubicación en urbanización con zonas verdes y piscinas. • 4 dormitorios. • Dormitorio principal en suite. • 2 baños completos aseo en planta baja amplio armario bajo escalera. • Garaje privado y plaza de garaje en zonas comunes. • Patio trasero con porche climatizado. • Posibilidad de buhardilla. Además, la zona dispone de todos los servicios necesarios para el día a día: dos colegios, farmacia, supermercado, estanco, hotel Occidental, casino, restaurantes y comercios de proximidad.
- 4 habs·
- 3 baños·
- 170 m²·
- Terraza
