Connect your home
Choose the Fiber that best suits you.
Terrassa
¡En construcción!
Gasòmetre es un proyecto de dos edificios, ubicado en Terrassa, en pleno barrio Segle XX. Cada edificio cuenta con 58 y 39 viviendas respectivamente. Entre ambos, hay viviendas disponibles de 1, 2, 3 y 4 habitaciones.
El edificio de 39 viviendas, dispondrá además de una zona comunitaria con piscina.
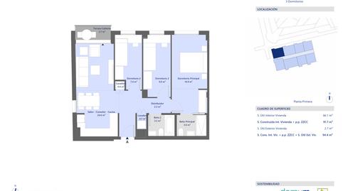
Las viviendas disponen de unas excelentes distribuciones. Y cuentan ambos edificios además con plantas sótano con garajes y trasteros.
La excelente orientación de ambos edificios, con una nueva plaza con parque y zonas de descanso, permite el aprovechamiento del asoleamiento en todas las viviendas, así como la integración con el entorno de la plaza de nueva creación.
A su vez, dispone de unos interiores modernos con materiales nobles y de primera calidad, con buenas distribuciones que permiten una gran calidez en sus estancias.
Gasòmetre es un referente de calidad medio ambiental y urbano. Su buena ubicación en Terrassa le sitúa en una zona residencial bien comunicada, con fácil acceso a todo tipo de servicios y a escasos minutos del centro.
Solicítanos más información sobre cada uno de los edificios y sus características.
Es tu vida, elige dónde vivirla
Typology
Floor
Parking
Elevator
Energy consumption
Emissions
Interest type
Estimated monthly payment
1.011 € *
* Provisional, subject to study and offer from CaixaBank
Are you already looking for finance?
We help you find the option that best suits you.
Service offered by
Fotocasa does not act as a financial intermediary. The information provided is for guidance only, based on publicly available market information. The credit institution will contact the potential borrower to negotiate, facilitate, and agree upon the applicable financial conditions.
Your monthly payment
1.011 € *
For 30 years (360 payments)
* Provisional, subject to study and offer from CaixaBank
Property price:
282.000 €
Taxes and Fees:
30.271 €
Total property cost:
312.271 €
Savings contributed:
56.400 €
Mortgage amount:
255.871 €
Total Interest:
108.089 €
Total cost with mortgage
420.360 €
Principal + interest + taxes and fees
Are you already looking for finance?
We help you find the option that best suits you.
Service offered by
Fotocasa does not act as a financial intermediary. The information provided is for guidance only, based on publicly available market information. The credit institution will contact the potential borrower to negotiate, facilitate, and agree upon the applicable financial conditions.
Choose the Fiber that best suits you.
Save 30% on a 5-star service.
Please let us know about it so we can correct it.