Non-payment insurance
We guarantee the collection of rental payments
Madrid Capital
¡ALTA DE SUMINISTROS GRATIS!
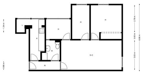
Excelente vivienda de tres dormitorios y un baño. Se encuentra en la 3ª planta de un edificio residencial. y cuenta con trastero. No dispone de ascensor. Situado en CASCO HISTORICO DE VALLECAS en el distrito de Villa de Vallecas.
La vivienda se distribuye en tres dormitorios y , armarios empotrados, salón-comedor con acceso a terraza, cocina independiente y un baño.. Cuenta con cocina amueblada y equipada con muebles altos y bajos, vitrocerámica, horno y campana extractora. Dispone de suelos de gres en cocina, baño y en el resto de estancias. Dispone de calefacción.
Se encuentra ubicado en Casco historico de Vallecas, Villa de Vallecas (Sureste de Madrid). Cuenta con fácil acceso a través de las principales carreteras y buenas comunicaciones por transporte público. La parada de metro más cercana es Villa de Vallecas y se encuentra a menos de 10 minutos andando. La parada de autobús más cercana es Real de Arganda y se encuentra a menos de 5 minutos andando. La parada de taxi más cercana se encuentra a menos de 10 minutos andando.
En su entorno existen viviendas plurifamiliares de similares características. La zona cuenta con todo tipo de servicios básicos, el centro de salud más cercano se encuentra a 380 metros, el hospital más cercano se encuentra a 110 metros, existen 3 farmacias a menos de 300 metros, existen 3 colegios a menos de 300 metros. Además, a menos de 500 metros también puedes encontrar 3 supermercados, 5 bancos, una lavandería, una oficina de correos, una comisaría de policía.
La zona cuenta con una amplia oferta de entretenimiento con un teatro, 20 parques, bares, restaurantes y comercios a pocos minutos de la vivienda.
En cuanto al transporte privado, la zona dispone de parkings privados y aparcamiento en la calle. La vivienda tiene un fácil acceso por carretera y está bien comunicado a través de la Autovia del Este, Plaza Martinez Olmedilla y la Calle Real de Arganda.
Requisitos:
- 1 mes de fianza
- Seguro del hogar a la firma del contrato.
- Antigüedad laboral ininterrumpida superior a un año.
- No aparecer en ningún fichero de morosidad.
- Disponer de una ratio de solvencia* de entre un 30% y 35% dependiendo de la zona.
*Solo se tendrán en cuenta ingresos demostrables para acreditar el ratio
Typology
Hot water
Heating
Status
Antiquity
Floor
Pets allowed
Energy consumption
Emissions
We guarantee the collection of rental payments
Choose the Fiber that best suits you.
Save 30% on a 5-star service.
Please let us know about it so we can correct it.